YouTube動画
物件を探すSEARCH
キーワードから探す
更新情報INFORMATION
|
|
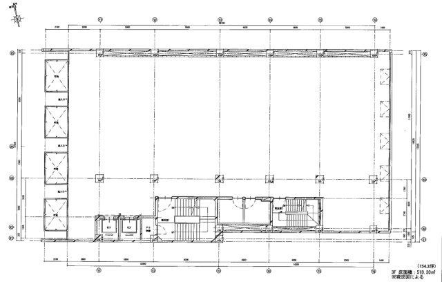
弊社の並びに建っている一番ビル4階が空き予定出ました。現在焼肉さんで居抜きです。造作譲渡料600万円。即営業可能です。解約は4月予定ですが、契約開始日は早めることもご相談可能です。※物件詳細ページは下記物件名をクリック一番ビル35.2万円千葉県柏市末広町4-5常磐線「柏」駅 徒歩1分... |
|
|---|---|---|
|
|
築古ですが、リノベでオシャレでキレイです!緑あふれる閑静な住宅街、戸張に位置する賃貸戸建ては更新料無し。ペット飼育も可、多頭飼い可、事務所相談可。唯一無二の物件ですのでお早めにご連絡ください。※物件詳細ページは下記物件名をクリック戸張アンティークモダンリノベ戸建11.5万円3LDK千葉県柏市戸張14... |
|
|
|
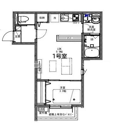
スマートホーム対応、次世代レントハウスkoeletシリーズ、柏、流山、松戸、野田、我孫子で続々登場!賃貸マンションのように便利に、安全に、快適に。持ち家のように広く、快適に、気兼ねなく暮らせる。大好きなペットと一緒に暮らせます!犬・猫の多頭飼い、大型犬、ご相談ください!そんなkoeletシリーズのご... |
|
|
|
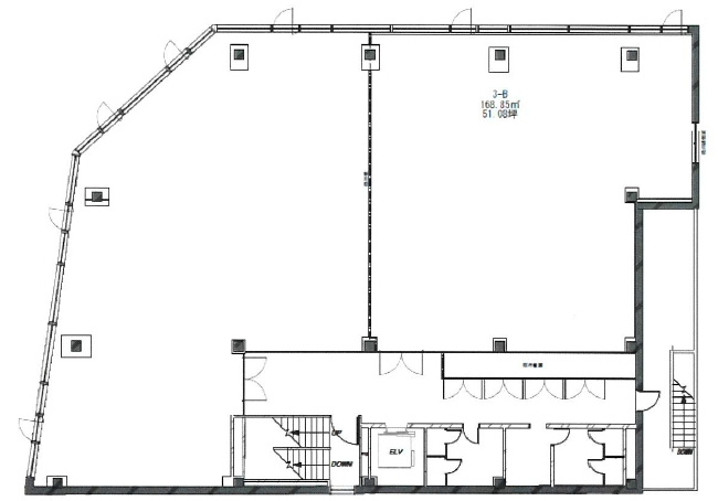
駅近で目立つビルの店舗物件のご紹介です!柏セントラルプラザは物販に最適なビルでございます!1階には京葉銀行やローソン、地下にはディスクユニオンとラケットショップが入ってます。シェアオフィスやコワーキングスペースとしての利用もご相談可能です。スケルトンなのでお好きな形に改装可能です!共用部分には男女別... |
|
|
|
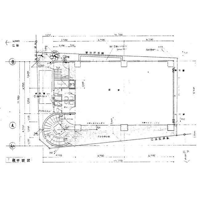
柏駅西口駅前に飲食店可ビルの募集が出ました!駅徒歩1分!なかなかこの場所での募集はでませんよ!すぐお申込が入ってしまうと思いますのでお早めにご連絡くださいませ!物件詳細ページは下記物件名をクリック↓↓↓一番ビル33万円千葉県柏市末広町4-5常磐線「柏」駅 徒歩1分... |
- 掲載物件数
- 564件
- 公開物件数
- 552件
- 本日の更新物件数
- 123件

