ライオンズタワー柏 2710

39万円

管理 / 共益費 -

千葉県柏市1丁目7-1

常磐線「柏」駅徒歩3分

常磐緩行線「北柏」駅徒歩34分

常磐緩行線「南柏」駅徒歩35分

賃料
39万円
敷金(保証金)
2ヶ月(0ヶ月)
間取り
3LDK
向き
所在地
千葉県柏市1丁目7-1
管理 / 共益費
-
礼金
1ヶ月
専有面積
78.95㎡
築年月
2016年3月(築9年)
交通

常磐線」駅 徒歩3分

常磐緩行線北柏」駅 徒歩34分

常磐緩行線南柏」駅 徒歩35分車9分 3.0km

物件の特徴

  • バストイレ別

  • 室内洗濯機置場

  • TVモニタ付きインターホン

  • カウンターキッチン

  • 独立洗面台

  • 浴室乾燥機

  • オートロック

  • エレベーター

セールスポイント

設備充実・安心のセキュリティ、最上階角部屋!ペット可!

ポイント

担当者のコメント

太田 康造

柏市の賃貸なら、お部屋探しの専門店ハピネスハウジングにお任せください!

基本情報

保証金
0ヶ月
敷引 / 償却
- / -
敷金積み増し
-
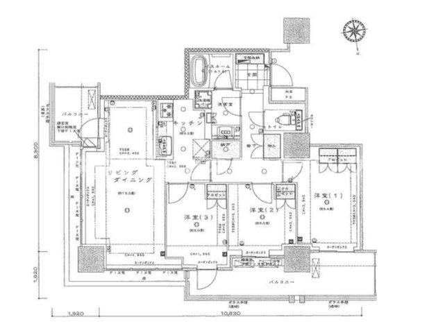
間取り / 詳細
3LDK
LDK 16.5帖/洋室 6.0帖/洋室 6.0帖/洋室 6.4帖
向き
専有面積
78.95㎡
バルコニー
(テラス)面積
-
所在階 / 階建て
27階 / 27階建 地下1階
建物構造
鉄筋コンクリート
築年月
2016年3月(築9年)
種別
賃貸マンション
保険会社 / 料金
有  / -
保証会社 / 料金
必加入 / その他
初回保証料総賃料の50%、1年毎に1万円の保証委託更新料あり。
初回保証料総賃料の50%、1年毎に1万円の保証委託更新料あり。
駐車場
空無 -
現況
空家
入居可能時期
即時

設備条件

設備条件
  • ペット相談 / 陽当り良好 / 保証人不要 / 事務所可 / 2人入居可 / 分譲タイプ / 眺望良好 / 学生不可 / 法人可 / 高層ビル / カップル向け / ファミリー向け / 室内洗濯機置場 / フローリング / バルコニー / 都市ガス / 公営水道 / 公共下水 / 24時間換気システム / エレベーター / 2面バルコニー / 駐輪場 / 敷地内ごみ置き場 / ガスコンロ / 食器洗い乾燥機 / システムキッチン / ディスポーザー / コンロ1口 / カウンターキッチン / バス・トイレ別 / 追焚機能浴室 / 浴室乾燥機 / 温水洗浄便座 / 洗面台 / 洗髪洗面化粧台 / シャワー / 独立洗面台 / ユニットバス / エアコン / 床暖房 / シューズボックス / 収納豊富 / インターネット対応 / オートロック / TVモニタ付インターホン / 宅配ボックス / 24時間緊急通報システム / フロントサービス / 24時間ゴミ出し可 / コンシェルジュサービス / 角部屋 / 初期費用カード決済可

その他

契約期間
定期借家 3年
賃貸区分
定期借家権
更新料
-
更新事務手数料
-
総戸数
265戸
特優賃
-
取引態様
仲介
物件番号
88137584
管理コード
-
情報更新日
2025年12月08日
次回更新予定日
2025年12月22日
取扱会社
  • 株式会社ハピネスハウジング
  • 千葉県柏市末広町4-2 (株)フード市々ビル 4階
  • TEL:04-7186-6956
  • 千葉県知事 (1) 第18496号
  • 公益社団法人 全日本不動産協会 公益社団法人 首都圏不動産公正取引協議会
備考
定期借家契約3年、ペット可(小型犬1匹のみ)、最上階角部屋2面採光、眺望良好、設備充実、安心のセキュリティ、タワマンで最上階はなかなかでません。内見可、現地待ち合わせ可、即入居可。弊社はお部屋探しの情報館です。弊社では、お客様のお好きな条件・エリアで最新情報でお部屋探しすることが可能です。お電話いただいた際には、ご希望条件と合わせて、ご来店・現地待ち合わせ・リモートとお客様のニーズに合わせたお好きなお部屋探しのスタイルをお伝えいただけますと幸いです。お部屋探しは柏駅西口徒歩1分のハピネスハウジングへお任せください。お問い合わせはお気軽に♪。tel:04-7186-6956

ライオンズタワー柏の他の部屋

  1. 2103

    2LDK (55.52㎡)

    22.5万円(1.34万円/坪)

近隣の物件

  1. LaSante柏

    柏市中央1丁目

    1K (26.28㎡)

    9.9万円

  2. ブランジュ南逆井

    柏市南逆井1丁目

    1LDK (39.67㎡)

    6.4万円

  3. グラン クリュA

    柏市高柳

    1LDK (41.19㎡)

    8.6万円

  4. マイホームネクスト柏松ケ崎

    柏市松ケ崎

    4LDK (95.63㎡)

    16.5万円

ライオンズタワー柏

ライオンズタワー柏

39万円

-

3LDK(78.95㎡)

お気軽にお問い合わせください

LINEからお問い合わせ 無料お問い合わせ

株式会社ハピネスハウジング

04-7186-6956

​10:00~20:00

(休:年末年始、GW、夏季休暇、毎週水曜日:1月~3月は無休)