ライオンズタワー柏最上階のご紹介!
言わずと知れた柏駅徒歩圏内のタワーマンション、ライオンズタワー柏のご紹介です!
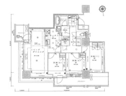
最上階角部屋でございます!なかなか出ませんよ!
眺望良好・設備充実・安心のセキュリティ!
タワーマンションならではのコンシェルジュサービスもございます!
天空ラウンジは必見でございます!
是非ご案内させてください!
物件詳細ページは下記物件名をクリック
↓↓↓
