パークホームズ柏あけぼの二丁目のご紹介!
パークホームズ柏あけぼの二丁目のご紹介でございます!
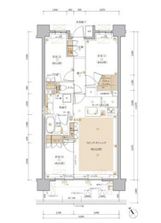
分譲賃貸マンションなので安心のセキュリティ・充実の室内設備!
広々リビングには床暖房付き!
2/28入居予定となっております!
賃貸募集されている戸数が少ないのでお早めにご検討ください!
先行申込受付中!
物件詳細ページは下記物件名をクリック
↓↓↓






